KD7T42、KD7T42P彈簧式快關蝶閥
KD7T42、KD7T42P 彈簧式快關蝶閥在煤氣余熱發電系統和抽汽供熱式汽輪機系統中,本類閥門作為系統安全的保障,得到了日益廣泛的應用。
產品說明
KD7T42、KD7T42P 彈簧式快關蝶閥在煤氣余熱發電系統和抽汽供熱式汽輪機系統中,本類閥門作為系統安全的保障,得到了日益廣泛的應用。其關閉迅速、流通阻力笑、截止可密封等優良性能使其可以代替原來系統設計中電動截止閥和止回閥使用。
產品用途
本閥主要用在熱電廠并聯機組和煤氣余熱發電機組上,用以作為保護系統安全得緊急切斷閥門。
產品特點
1、快速關閉時間可達0.5秒,緊急切斷安全可靠。
2、三偏心金屬密,封結構啟閉輕便靈活,密封零泄露。
3、常溫介質可選用雙偏心軟密封結構,造價低,密封可靠。
4、關閥末端緩沖,有效避免閥門慣性沖擊。
5、可以用彈簧實現快關,液可以用蓄能器實現快關,兩種形式異曲同工,同樣安全可靠。
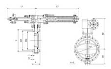
結構連接尺寸
| DN | P | L | L1 | L2 | H1 | H2 | 法蘭連接尺寸 |
| 400 | 0.6 | 216 | 966 | 1449 | 320 | 780 | GB/T17241 DB/T9113 |
| 1.0 | 216 | 966 | 1449 | 330 | 785 | ||
| 1.6 | 216 | 966 | 1449 | 345 | 800 | ||
| 450 | 0.6 | 222 | 966 | 1449 | 370 | 805 | |
| 1.0 | 222 | 966 | 1449 | 380 | 810 | ||
| 1.6 | 222 | 966 | 1449 | 395 | 835 | ||
| 500 | 0.6 | 229 | 966 | 1449 | 400 | 898 | |
| 1.0 | 229 | 966 | 1449 | 410 | 898 | ||
| 1.6 | 229 | 966 | 1449 | 425 | 898 | ||
| 6000 | 0.6 | 267 | 966 | 1449 | 440 | 898 | |
| 1.0 | 267 | 966 | 1449 | 460 | 920 | ||
| 1.6 | 267 | 1150 | 1820 | 470 | 1020 | ||
| 700 | 0.6 | 292 | 966 | 1449 | 436 | 950 | |
| 1.0 | 292 | 1150 | 1820 | 550 | 1075 | ||
| 1.6 | 292 | 1150 | 1820 | 570 | 1100 | ||
| 800 | 0.6 | 318 | 1150 | 1820 | 625 | 1142 | |
| 1.0 | 318 | 1150 | 1820 | 640 | 1158 | ||
| 1.6 | 318 | 1150 | 1820 | 660 | 1183 | ||
| 900 | 0.6 | 330 | 1150 | 1820 | 700 | 1190 | |
| 1.0 | 330 | 1150 | 1820 | 710 | 1210 | ||
| 1.6 | 330 | 1150 | 1820 | 725 | 1239 | ||
| 1000 | 0.6 | 410 | 1150 | 1820 | 760 | 1250 | |
| 1.0 | 410 | 1150 | 1820 | 770 | 1275 | ||
| 1.6 | 410 | 1360 | 2180 | 790 | 1306 | ||
| 1200 | 0.6 | 470 | 1150 | 1820 | 875 | 1360 | |
| 1.0 | 470 | 1360 | 2180 | 890 | 1385 | ||
| 1.6 | 470 | 1360 | 2180 | 915 | 1418 | ||
| 1400 | 0.6 | 530 | 1360 | 2180 | 1000 | 1478 | |
| 1.0 | 530 | 1360 | 2180 | 1020 | 1510 | ||
| 1.6 | 530 | 1360 | 2180 | 1045 | 1546 | ||
| 1600 | 0.6 | 600 | 1360 | 2180 | 1120 | 1599 | |
| 1.0 | 600 | 1360 | 2180 | 1140 | 1639 | ||
| 1.6 | 600 | 1610 | 2520 | 1170 | 1738 |
尺寸圖

安裝注事事項
1、安裝前應核對蝶閥規格、壓力、溫度、耐腐性是否滿足使用要求。 應檢查各零部件是否損壞或松動。
2、本蝶閥可安裝在任意角度的管道上,應關閉安裝為宜;焊接管道法蘭時應將閥門密封口用板擋住以防止顆粒、雜物挫傷密封面,焊后取下 閥門,對閥門密封面及管道內腔進行清潔,然后再安裝固定閥門。
3、安裝時請注意閥門關閉狀態承壓方向。
4、安裝前應將密封面(兩端密封面、蝶板密封面、閥座密封面)徹底擦干凈,去掉灰塵和污物。
5、安裝前應空試蝶閥,啟閉應靈活,啟閉位置與指針指示位置相符合。
6、手動操作順時針為關,逆時針為開,指針指示到位后不準再加力啟閉閥門。
7、閥門做壓力試驗時,不準用單法蘭進行安裝試壓,必須采用雙法蘭安裝試壓。其試驗壓力應符合GB/T13927-92標準規定。
8、緊固螺栓時應對稱交替進行緊固,不準依次單獨緊固。
9、限位螺釘出廠前,已經調好,不準輕易調整。若配置驅動裝置為電動、氣動請閱配套驅動裝置說明書。
10、電動蝶閥出廠時已將控制機構的啟閉行程調好。為防止電源接通時方向搞錯,用戶在第一次接通電源前要先手動開啟至半開位置,再按點動開關,檢查指示盤方向與閥門開啟方向一致即可。
11、發現閥門啟閉失常應查明原因進行修理和排除,防止用加力方法開關閥門,造成閥門的損壞。
|
||||||||||||||||||||||||
![]() |
||||||||||||||||||||||||
| ||||||||||||||||||||||||










