Q641F型氣動O型調節球閥PN16~PN25
Q641F型氣動O型調節球閥PN16~PN25是一種轉角為0-90°的旋轉類閥門,密封性能優良,流量系數大,流阻系數小,結構簡單,使用壽命長,便于維修。氣動調節球閥是以壓縮空氣為動力,閥桿帶動閥芯在閥體內轉動90°可以實現全開—全閉的動作。
產品概述
Q641F型氣動O型調節球閥PN16~PN25是一種轉角為0-90°的旋轉類閥門,密封性能優良,流量系數大,流阻系數小,結構簡單,使用壽命長,便于維修。氣動調節球閥是以壓縮空氣為動力,閥桿帶動閥芯在閥體內轉動90°可以實現全開—全閉的動作。氣動調節球閥采用智能控制與定位,與電氣閥門定位器配套,輸入4~20mADC信號及0.4~0.7MPa氣源即可控制運轉,實現對壓力、流量、溫度、液位等參數的調節。氣動調節O型球閥產品廣泛應用于化工、石油、輕紡、電力、食品制藥、制冷、造紙行業的系統控制。
特點
1、流體阻力小、球閥是所有閥類中流體阻力最小的一種,即使是縮徑球閥,其流體阻力也相當小。
2、止推軸承減小閥桿摩擦力矩,可使閥桿長期操作平衡靈活。
3、閥座密封性能好,采用聚四氟乙烯等材料制成的密封圈,結構易于密封,而且球閥的閥封能力隨著介質壓力的增設而增大。
4、閥桿密封可靠,由于閥桿只作旋轉運動而不做升降運動,閥桿的填料密封不易破壞,且密封能力隨著介質的壓力增設而增大。
5、由于聚四氟乙烯等材料具有良好的自潤滑性,與球體的摩擦損失小,幫球閥的使用壽命長。
6、下裝式閥桿和閥桿頭部凸階防止閥桿噴出,如火災造成閥桿密封破壞,凸階與閥體間還可形成金屬接觸,確保閥桿密封。
技術參數
公稱通徑 DN(mm) | 15 | 20 | 25 | 32 | 40 | 50 | 65 | 80 | 100 | 125 | 150 | 200 |
|---|---|---|---|---|---|---|---|---|---|---|---|---|
| 額定流量系數KV | 21 | 38 | 72 | 112 | 170 | 273 | 384 | 512 | 940 | 1452 | 2222 | 3589 |
| 公稱壓力(MPa) | PN1.6、2.5、4.0、6.4 MPa;ANSI 150、300LB | |||||||||||
| 閥體形式 | 兩段式鑄造球閥 | |||||||||||
| 連接形式 | 法蘭式、焊接式、對夾式、螺紋式 | |||||||||||
| 閥芯形式 | "O"型球形閥芯 | |||||||||||
| 密封填料 | V型聚四氟乙烯填料、柔性石墨填料等 | |||||||||||
| 流量特性 | 近似快開型 | |||||||||||
| 動作范圍 | 0~90° | |||||||||||
| 泄露量Q | 按GB/T4213-92,小于額定KV0.01% | |||||||||||
| 基本誤差 | 帶定位器:小于全行程的±2% | |||||||||||
| 回差 | 帶定位器:小于全行程的2% | |||||||||||
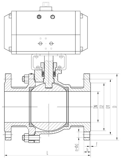
結構尺寸
公稱通徑 DN(mm) | 主要尺寸 | 法蘭尺寸 | |||||||||
|---|---|---|---|---|---|---|---|---|---|---|---|
| PN1.6MPa | PN2.5MPa | ||||||||||
| L | H | W | D | D1 | D2 | n-φd | D | D1 | D2 | n-φd | |
| 15 | 130 | 185 | 140 | 95 | 65 | 46 | 4-14 | 95 | 65 | 46 | 4-14 |
| 20 | 140 | 191 | 140 | 105 | 75 | 45 | 4-14 | 105 | 75 | 56 | 4-14 |
| 25 | 150 | 193 | 140 | 115 | 85 | 65 | 4-14 | 115 | 85 | 65 | 4-14 |
| 32 | 165 | 212 | 164 | 140 | 100 | 76 | 4-18 | 140 | 100 | 76 | 4-18 |
| 40 | 180 | 217 | 164 | 150 | 110 | 84 | 4-18 | 150 | 110 | 84 | 4-18 |
| 50 | 200 | 260 | 190 | 165 | 125 | 99 | 4-18 | 165 | 125 | 99 | 4-18 |
| 65 | 220 | 293 | 210 | 185 | 145 | 118 | 4-18 | 185 | 145 | 118 | 8-18 |
| 80 | 250 | 323 | 247 | 200 | 160 | 132 | 8-18 | 200 | 160 | 132 | 8-18 |
| 100 | 280 | 382 | 276 | 220 | 180 | 156 | 8-18 | 235 | 190 | 156 | 8-22 |
| 125 | 320 | 468 | 348 | 250 | 210 | 184 | 8-18 | 270 | 220 | 184 | 8-26 |
| 150 | 360 | 510 | 378 | 285 | 240 | 211 | 8-22 | 300 | 250 | 211 | 8-26 |
| 200 | 400 | 655 | 524 | 340 | 295 | 266 | 12-22 | 360 | 310 | 274 | 12-26 |
| 250 | 630 | / | / | 405 | 355 | 319 | 12-26 | 425 | 370 | 330 | 12-30 |
| 300 | 750 | / | / | 460 | 410 | 370 | 12-26 | 485 | 430 | 389 | 16-30 |
結構尺寸圖

維護
氣動球閥在安裝前的準備工作:
1、保證氣動管路球閥安裝位置管線在同軸位置上,管線上兩片法蘭應保持平行,確認管線能夠承受氣動管路球閥自身重量,如果發現管線不能承受氣動管路球閥重量,則在安裝前為管線配備相應的支撐。
2、確認管線內是否有雜質、焊渣等,必須要把管線內吹掃干凈。
3、核對氣動管路球閥銘牌,并對氣動管路球閥進行全開全閉數次操作,確認閥門能夠正常工作,再全面檢查一次閥門的各個細節,保證閥門完好無損。
4、除去閥門兩端的保護蓋,檢查閥體內是否干凈,清洗閥體內腔,由于氣動管路球閥的密封面是球形狀,即使微小的雜物也可能造成密封面的損傷。
氣動管路球閥的安裝:
1、氣動管路球閥的任何一段都可安裝在上游端,手柄氣動管路球閥可以安裝在管線的任何位置,如果配置執行機構(如齒輪箱、電-氣動執行器)的氣動管路球閥,則必須垂直安裝,閥門進出口處在水平位置上。
2、氣動管路球閥法蘭與管線法蘭間按管路設計要求裝上密封墊。
3、法蘭上的螺栓需對稱、逐次、均勻擰緊。
4、如果氣動管路球閥采取氣動、電動等執行器時,按說明書完成氣源、電源的安裝。
氣動管路球閥安裝后的檢查:
1、安裝完畢后,啟動氣動管路球閥開、關數次,應該動作靈活,受力均勻,氣動管路球閥工作正常。
2、根據管道壓力設計要求,通壓后檢測氣動管路球閥與管道法蘭結合面的密封性能。
|
||||||||||||||||||||||||
![]() |
||||||||||||||||||||||||
| ||||||||||||||||||||||||










